Co oznacza norma DIN 18101 dla drzwi?

DIN 18101 „Drzwi – Drzwi do budownictwa mieszkaniowego – Wymiary skrzydła drzwiowego, położenie zawiasów i zamka – Wzajemna zależność wymiarów” to najważniejsza norma dla drzwi wewnętrznych. Umożliwia ona oddzielny montaż poszczególnych elementów. Obowiązuje zarówno dla drzwi jednoskrzydłowych, dwuskrzydłowych, jak i skrzydeł drzwiowych z chowanym zawiasem. Norma rozróżnia skrzydła drzwiowe przylgowe i bezprzylgowe. Jest ściśle powiązana z normą DIN 18100, która określa preferowane otwory w ścianie dla drzwi. Drzwi wykonane zgodnie z DIN 18101 pasują niezawodnie do znormalizowanego otworu w ścianie.
Wysokość i szerokość drzwi wewnętrznych określane są w siatce wymiarowej. Oznacza to, że wymiary wysokości i szerokości można dowolnie ze sobą łączyć. Mimo to przyjęły się pewne standardowe wymiary. Wymiary drzwi określone w DIN 18101 obowiązują niezależnie od producenta. Dotyczą zarówno drzwi produkowanych przemysłowo, jak i wykonywanych ręcznie drzwi pokojowych. Oznacza to, że drzwi i ościeżnice zgodne z normą są ze sobą kompatybilne.
Z pomocą naszych arkuszy pomiarowych szybko i łatwo zmierzysz swoje nowe drzwi i ościeżnicę:
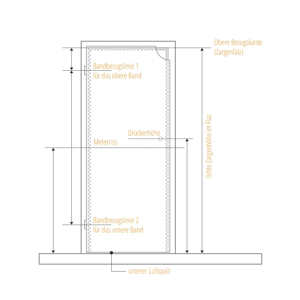
Odstępy między zawiasami są również określone w normie. Dzięki temu można później zawiesić inne skrzydło drzwiowe w ościeżnicy. Położenie trzeciego zawiasu, niezbędnego przy montażu cięższych drzwi, także jest znormalizowane. Montuje się go 350 mm poniżej górnego zawiasu. Znormalizowane położenie zamka gwarantuje również, że drzwi można zaryglować w ościeżnicy.
Norma zapewnia ponadto, że drzwi można bezproblemowo otwierać i zamykać. Określa ona graniczne wartości szczelin powietrznych u góry, dołu i po bokach. Boczne szczeliny nie mogą łącznie przekraczać dziewięciu milimetrów. Wąska szczelina na dolnej krawędzi skrzydła drzwiowego jest konieczna, aby nie ocierało ono o podłogę. Zbyt szeroka szczelina powoduje niepożądane przenikanie światła i należy jej unikać.
DIN 18101 dotyczy wyłącznie drzwi wewnętrznych, a nie drzwi wejściowych czy wielofunkcyjnych. Wszystkie elementy drzwi przeciwpożarowych i dymoszczelnych muszą być ze sobą dopasowane przez producenta, aby uzyskać zatwierdzenie budowlane. Takie drzwi są więc sprawdzane jako jeden system.



