Zadzwoń do obsługi klienta

Loading.. Twój koszyk jest aktualizowany...

Sukces Kontynuuj zakupy

WESTAG Jednoczęściowa stalowa ościeżnica L1 drzwi przeciwpożarowych T90 do ścian lekkich
Stabilna stalowa rama L1 do drzwi przeciwpożarowych T90

Front view of steel frame solid wall for fire doors T90 - Westag

1/
Przedstawione na zdjęciach kolory mogą odbiegać od rzeczywistych kolorów w zależności od ustawień wyświetlacza lub monitora, dlatego nie są wiążące.

WESTAG Jednoczęściowa stalowa ościeżnica L1 drzwi przeciwpożarowych T90 do ścian lekkich

Westag

Stabilna stalowa rama L1 do drzwi przeciwpożarowych T90

Oszczędzasz
- 12 %
(12% zaoszczędzone)
72,10 zł*
2 664,11 zł 1) *
2 348,70 zł *

Pokaż więcej Dostępny

|

Czas dostawy: 4-6 tygodni

Zapewnia stabilność Twoim drzwiom T90: Stalowa ościeżnica L1 od Westag stanowi idealne wykończenie dla Twoich drzwi przeciwpożarowych.

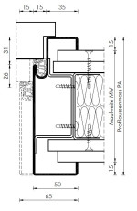
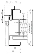
Grubość blachy ościeżnicy wynosi 1,5 mm. Jest jednoczęściowa i nadaje się do montażu w ścianach lekkich. Powierzchnia jest ocynkowana i zabezpieczona podkładem.

Ta stalowa ościeżnica zapewnia Twoim drzwiom trwałe wsparcie!

  • Stalowa ościeżnica L1 do drzwi przeciwpożarowych T90
  • Produkcja w jakości markowej
  • ocynkowana i zabezpieczona podkładem powierzchnia
Marka: Westag

Robustna stalowa rama L1 od Westag - ocynkowana i zabezpieczona podkładem:

  • Rodzaj powierzchni: Stal
  • Powierzchnia: Stal podkładowy w odcieniu RAL 7038
  • wymiary przylgi: 1. przylga: 13 x 25,5 mm, 2. przylga: 15 x 25,5 mm (podwójna przylga)
  • Konstrukcja: wraz z kotwą; Profil L1; Lustro 35 / 65 mm
  • Panel drzwi: grubość blachy 1,5 mm
  • Standardowe wykonanie mocowania zawiasu: 2 mocowania VX (ocynkowane, regulowane 3D)
  • Cechy szczególne: w tym przygotowanie do Obentürschließer
  • Grubość ściany: 100 mm do 450 mm
  • Uszczelka: dołączone luzem, Szary
  • Środowisko montażu: Ściana lekkiej konstrukcji
  • Szczegóły wzoru: brak lakierowania końcowego (wykonanie powierzchni służy wyłącznie za gruntowanie, konieczne jest dalsze malowanie); uszkodzenia powstałe podczas transportu należy naprawić podczas montażu
  • Zakres dostawy: Zarge, Zargendichtung

Instrukcja montażu: Zobacz plikRamy stalowe do drzwi T90


Dane producenta:
Westag AG
Hellweg 15
33378 Rheda-Wiedenbrück
E-Mail: ze@westag.de

Konfiguracja produktu

* Wymagane pola

Cena standardowa
609,00 zł1) *
Aktualna cena
2 348,70 zł *
Oszczędzasz 12 %
72,10 zł *
Czas dostawy: 4-6 tygodni