Twój koszyk jest aktualizowany...
Kontynuuj zakupy
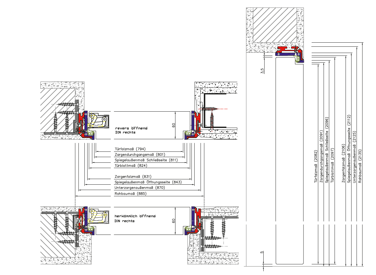
Tak powstają wymiary wysokości i szerokości serii modulWERK 1.0


Twój koszyk jest aktualizowany...
Kontynuuj zakupy
Tak powstają wymiary wysokości i szerokości serii modulWERK 1.0

