Zadzwoń do obsługi klienta

Loading.. Twój koszyk jest aktualizowany...

Sukces Kontynuuj zakupy

HÖRMANN ościeżnica narożna ze stali dwuczęściowa profil 11125 do drzwi 1-skrzydłowych, do wszystkich typów ścian
Dwuczęściowa ościeżnica narożna o profilu 11125 wykonana z ocynkowanej blachy stalowej

HÖRMANN ościeżnica narożna ze stali dwuczęściowa profil 11125 do drzwi 1-skrzydłowych, do wszystkich typów ścian

1/
Przedstawione na zdjęciach kolory mogą odbiegać od rzeczywistych kolorów w zależności od ustawień wyświetlacza lub monitora, dlatego nie są wiążące.

HÖRMANN ościeżnica narożna ze stali dwuczęściowa profil 11125 do drzwi 1-skrzydłowych, do wszystkich typów ścian

Hörmann

Dwuczęściowa ościeżnica narożna o profilu 11125 wykonana z ocynkowanej blachy stalowej

Oszczędzasz
- 14%
(14% zaoszczędzone)
72,10 zł*
2 224,84 zł 1) *
1 905,93 zł *

Pokaż więcej Dostępny

|

Czas dostawy: 4-6 tygodni

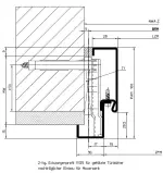
Zapewnia idealne mocowanie drzwi: Dwuczęściowa stalowa ościeżnica narożna o profilu 11125 firmy Hörmann nadaje się do wszystkich typów ścian.

Ościeżnica jest produkowana zgodnie z normą DIN 18111 . Jest wykonana z blachy stalowejo grubości 1,5 mm i ocynkowana. Ponadto ościeżnica jest przystosowana do zawiasów serii V 8000.

Ta stalowa ościeżnica narożna przekonuje swoją solidną budową!

  • 1-częściowa ościeżnica narożna ze stali o profilu 11125
  • Produkcja w jakości marki Hörmann
  • nadaje się do wszystkich rodzajów ścian
Marka: Hörmann

Dwuczęściowa stalowa ościeżnica narożna, odpowiednia do wszystkich typów ścian:

  • Norma DIN: DIN 18111
  • Rodzaj powierzchni: Stal
  • Powierzchnia: RAL 7035
  • Kształt ościeżnicy: Kanciasta krawędź
  • wymiary przylgi: 28,5 x 15 mm
  • Konstrukcja: Materiał: ocynkowana blacha stalowa (grubość 1,5 mm); wykonanie dwuwarstwowe spawane na ukos; wymiar lustra: 30 mm / 28 mm
  • Standardowe wykonanie mocowania zawiasu: przygotowane do zawiasów serii V8000
  • Standardowe wykonanie płytki zaczepowej: obustronnie zgodnie z DIN 18111/18251 z nacięciem oznaczającym metr
  • Okładzina ościeżnicy: 15 x 30 mm, kanciasta
  • Uszczelka: Profil tłumiący w kolorze szarym
  • Warunki montażu: wszystkie rodzaje ścian
  • Szczegóły wzoru: Oberfläche RAL 7035: keine Endlackierung (Oberflächenausführung ist ausschließlich eine Grundierung, eine weitere lacktechnische Behandlung ist notwendig); schadhafte Stellen, die durch den Transport entstanden sind, müssen bauseits ausgebessert werden)
  • Zakres dostawy: Stalowa ościeżnica narożna, 1 kątownik dystansowy przymocowany do dolnej krawędzi ościeżnicy, profil tłumiący

Dane producenta:
Hörmann KG Verkaufsgesellschaft
Upheider Weg 94-98
33803 Steinhagen
E-Mail: info@hoermann.de

Konfiguracja produktu
Co to jest? Pokaż więcej ikonę
Co to jest? Pokaż więcej ikonę

* Wymagane pola

Cena standardowa
503,00 zł1) *
Aktualna cena
1 905,93 zł *
Oszczędzasz 14%
72,10 zł *
Czas dostawy: 4-6 tygodni

Ochrona kupującego możliwa

Trusted Shops Sterne

Doskonały

5,00/5,00