Zadzwoń do obsługi klienta

Loading.. Twój koszyk jest aktualizowany...

Sukces Kontynuuj zakupy

HÖRMANN ościeżnica opaskowa stalowa dwuczęściowa do konstrukcji szkieletowej
Solidna stalowa ościeżnica opaskowa do montażu w konstrukcji szkieletowej

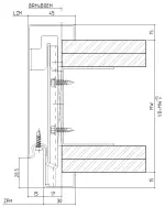
Widok frontowy w RAL 7035 2-częściowej stalowej ościeżnicy opaskowej do konstrukcji szkieletowej - Hörmann

1/
Przedstawione na zdjęciach kolory mogą odbiegać od rzeczywistych kolorów w zależności od ustawień wyświetlacza lub monitora, dlatego nie są wiążące.

HÖRMANN ościeżnica opaskowa stalowa dwuczęściowa do konstrukcji szkieletowej

Hörmann

Solidna stalowa ościeżnica opaskowa do montażu w konstrukcji szkieletowej

Oszczędzasz
- 14%
(14% zaoszczędzone)
72,10 zł*
2 211,58 zł 1) *
1 894,57 zł *

Pokaż więcej Dostępny

|

Czas dostawy: 3-4 tygodnie

Prosty montaż: Dwuczęściowa stalowa ościeżnica opaskowa Hörmann jest błyskawicznie montowanaw konstrukcji szkieletowej. Fabrycznie zamontowana uniwersalna kotwa trapezowa sprawia, że instalacja ościeżnicy jest prosta.

Wytrzymała blacha stalowa to jej cecha szczególna. Podkład nakładany metodą elektroforezy zapewnia skutecznąochronę przed korozją. Wahania temperatury i wilgotności nie mają wpływu na stabilność ościeżnicy w konstrukcji szkieletowej.

Ta ościeżnica stalowa zapewnia gwarancję stabilnego obramowania drzwi!

  • nadaje się do konstrukcji szkieletowej
  • 2-częściowa stalowa ościeżnica opaskowa
  • Jakość marki Hörmann
Marka: Hörmann

Dwuskalna stalowa rama otaczająca od Hörmann, przeznaczona do montażu w konstrukcji szkieletowej:

  • Norma DIN: DIN 18111
  • Rodzaj powierzchni: Stal
  • Kształt ościeżnicy: Kanciasta krawędź
  • wymiary przylgi: 28,5 x 15 mm
  • Konstrukcja: ocynkowana blacha stalowa, wykonanie dwuwarstwowe spawane na ukos
  • Standardowe wykonanie mocowania zawiasu: przygotowane do zawiasów serii V8000
  • Standardowe wykonanie płytki zaczepowej: obustronnie zgodnie z DIN 18111/18251 z nacięciem oznaczającym metr
  • Cechy szczególne: Podkład w kolorze jasnoszarym (zgodnie z RAL 7035): brak lakierowania końcowego (wymagana dalsza obróbka lakiernicza)
  • Okładzina ościeżnicy: 15 x 45 mm, kanciasta
  • Grubość ściany: 75 mm do 400 mm
  • Uszczelka: Profil tłumiący w kolorze czarnym
  • Szczegóły wzoru: Powierzchnia RAL 7035: brak lakierowania końcowego (wykonanie powierzchni to wyłącznie gruntowanie, konieczna jest dalsza obróbka lakiernicza; uszkodzone miejsca powstałe podczas transportu muszą zostać naprawione przez zamawiającego)
  • Zakres dostawy: Obramowanie, 2x uchwyty zawiasów, profil tłumiący



Dane producenta:
Hörmann KG Verkaufsgesellschaft
Upheider Weg 94-98
33803 Steinhagen
E-Mail: info@hoermann.de

Ogólna ocena
(z Trusted Shops)
Gwiazda Gwiazda Gwiazda Gwiazda Gwiazda
Gwiazda Gwiazda Gwiazda Gwiazda Gwiazda
5,00 z 5.00 gwiazdek
    • 5 Gwiazdy
    • 4 Gwiazdy
    • 3 Gwiazdy
    • 2 Gwiazdy
    • 1 Gwiazda
Gwiazda Gwiazda Gwiazda Gwiazda Gwiazda
Gwiazda Gwiazda Gwiazda Gwiazda Gwiazda
Frank W.
13.02.2023
Konfiguracja produktu
Co to jest? Pokaż więcej ikonę
Co to jest? Pokaż więcej ikonę
Co to jest? Pokaż więcej ikonę
Co to jest? Pokaż więcej ikonę

* Wymagane pola

Cena standardowa
503,00 zł1) *
Aktualna cena
1 894,57 zł *
Oszczędzasz 14%
72,10 zł *
Czas dostawy: 3-4 tygodnie

Skorzystaj z ochrony kupujących

Trusted Shops Sterne

Doskonały

5,00/5,00